衛星時鐘系統說明書
系統簡介
一、GPS/BD2000衛星時鐘系統是電力系統專用衛星時鐘系統。符合下列標準:
GJB2242-1994 時統設備通用規范
GJB2991-1997 B時間碼接口終端
GJB2715-1996 國防計量通用術語
GB/T15527-1995 船用全球定位系統(GPS)接收通用技術條件
GB11014-1990 平衡電壓數字接口電路的電氣特性
GB/T6107-2000 使用串行二進制數據交換的數據終端設備和數據電路終接設備之間的接口
GB/T14429-1993 遠動設備和系統術語
GB/T16435-1996 遠動設備和系統接口
GB/T17463-1998 遠動設備和系統性能要求
GB/T13926-1992 工業過程測量合乎控制裝置的電磁兼容性
IEC255-22-1 Ⅲ級 高頻干擾試驗
IEC255-22-2 Ⅲ級 靜電放電試驗
IEC255-22-3 Ⅲ級 輻射電磁場干擾試驗
IEC255-22-4 Ⅲ級 快速瞬變干擾試驗
二、系統組成
1、GPS/BD2000衛星時鐘系統由北斗衛星時鐘系統、GPS衛星時鐘系統、本地時鐘系統以及由這3種時鐘系統組合信號變換的輔助光電子系統組成。
2、系統組件主要為:
A、衛星時鐘主機
衛星時鐘主機的衛星系統為GPS/北斗雙模式接收,該衛星雙模接收系統既能夠同時接收北斗/GPS雙星系統,也能夠單獨分別接收GPS或者北斗衛星系統。基于最可靠方式,本時鐘系統采用了雙星模式。雙模式同時接收國產北斗衛星系統和美國GPS全球定位系統衛星,使得參與同步定位的衛星數量大幅增加,并且搜星速度快,同步定位精度比單獨GPS方式更高,時鐘精度更精準。
衛星時鐘主機內具有高精度本地時鐘守時系統。本地守時系統精度為10-8,高可至為10-9。在GPS、北斗衛星系統正常的情況下,本地時鐘系統被衛星所同步。當衛星系統連接故障時,時鐘主機自動切換到本地時鐘,仍舊能夠提供高精度時鐘輸出。
系統包括2臺時鐘主機,實現雙主機熱備用。一臺時鐘主機故障時,不影響系統運行。
B、時鐘分機
分機包括本地守時時鐘系統和能夠接受2臺上位主時鐘的光同步時鐘信號。當1臺主時鐘故障時,分機會自動切換到備用主時鐘。當2臺主時鐘均未連接時,分機保持高精度自身時鐘運行。
C、信號擴展箱
信號擴展箱為信號數量擴展裝置。采用模塊化插卡方式,能夠方便的通過功能卡的配置實現所需的對時功能。
3、系統結構圖
系統結構如下圖所示:
GPS/北斗時鐘系統
詳細說明
一、衛星時鐘主機
1、機箱尺寸
如圖所示:

時鐘主機為標準19”2U插箱,適合標準電力機柜。
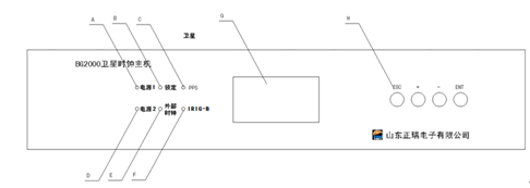
2、前面顯示板
如圖所示
![5c345a1780a7c.png DLU86OWR7$O~KZQFGC[I7]D.png](/uploads/img1/20190108/5c345a1780a7c.png)
A、 電源1指示燈
B、 衛星鎖定指示燈。衛星鎖定時常亮;衛星失鎖則閃爍。
C、 1PPS秒脈沖指示燈
D、 電源2指示燈。
E、 外部時鐘狀態指示燈。外部時鐘有效時常亮,外部時鐘丟失后閃爍。
F、 IRIG-B碼信號輸出指示。閃爍情況標示了CPU板上的IRIG-B信號輸出情況。
G、 LCD液晶顯示屏,用于顯示當前日期,時間,運行狀態。
H、 功能按鍵。因主時鐘版本不同而異。
3、電源輸入卡件

供電電源接入為110V-220VAC/DC電源。
4、衛星天線卡件

接入衛星天線。
5、CPU卡件
![5c345aadcf3c4.png HL)EEF_G8B$FBV]~}YE[50L.png](/uploads/img1/20190108/5c345aadcf3c4.png)
CPU卡件具有B碼互聯光口接口形式為ST,并有相應的信號指示燈。維護端口為以太網接口,出廠默認IP為:192.168.1.240;通過專用網絡維護軟件進行維護。
6、TTL電平的IRIG-B碼互聯卡件


該卡件為兼容之前產品用于互聯的TTL電平輸入/輸出IRIG-B信號,輸入TTL電平的IRIG-B碼:1+ 2-;輸出TTL電平的IRIG-B碼:3+ 4-。5、6、7、8針端子為外接時鐘無效報警和衛星失鎖報警端子。該端子為內部繼電器接點,需外接電源后導通報警。
7、光信號輸出卡件

輸出3路ST光信號。通過卡件的撥碼跳線,可以選擇輸出光信號的種類分別為PPS/PPM/PPH/IRIG-B等。
光輸出板信號輸出選擇及撥碼開關位置對應表
(五選一 , ON有效,OFF關閉)
ON | 1 | 2 | 3 | 4 | 5 |
OFF | 串口報文 | PPS | PPM | PPH | IRIG-B |
8、NTP網絡時鐘卡件

網絡時鐘卡件輸出NTP(SNTP)網絡時鐘,用于網絡校時。出廠設置默認IP地址為192.1687.1.240。若需設置IP,則連接后通過WEB瀏覽器(例如IE8.0)登錄進行設置。
9、脈沖輸出卡件
![5c345e94395ee.png 1N}170CC}N07H[DH}G20]FN.png](/uploads/img1/20190108/5c345e94395ee.png)
脈沖輸出卡件輸出4路或8路(訂貨時需指明)空接點脈沖,通過卡件上撥碼開關設置脈沖種類。脈沖信號選擇為四選一單選開關,即只能選擇1路信號,否則會相互干擾。ON為開通該信號,OFF為關閉該信號。撥碼開關與信號輸出對應表如下:
ON | 1 | 2 | 3 | 4 |
OFF | IRIG-B | PPS | PPM | PPH |
10、差分485信號卡件
如圖所示

差分485信號卡件輸出4路485差分電平的信號。通過撥碼開關選擇信號種類。五選一,單選。ON為選中該信號,OFF為關斷該信號。
1 | 2 | 3 | 4 | 5 |
IRIG-B(DC) | PPH | PPM | PPS | RS485串口報文 |
11、串口輸出卡件

串口輸出卡件輸出RS232。每個卡件共有4個RS232串口。TX發,G腳為地。串口報文默認如下,指定報文時請訂貨時說明:
01 幀頭,為16進制,表示報文開始。以后依次是
YYYY 4位年
MM 月
DD 日
hh 時
mm 分
ss 秒
A/V 有效位。A有效,V無效。
Pppp.pppp 位置緯度信息
N 北緯標志
Ppppp.pppp 位置經度信息
E 東經標志
0D 0A 報文結束。
感謝使用山東正瑞電子有限公司產品!
技術支持:www.fke0g.cn
E-mail: sdzhengrui@163.com
電話:0533-3581782 3582840
傳真:0533-3580697
地址:山東省淄博市高新區政通路135號高科技創業園B座110
- 上一篇:串口對時軟件TIME7_CH
- 下一篇:ZRBG1000衛星時鐘用戶手冊
新聞資訊文章
20年專注電力設備安全在線監測研究
微型電力無源無線測溫
開關柜智能操控裝置
無線測溫采集終端DC
無線傳輸紅外熱成像測 